Electric Oven Wiring Diagram Pglef385cs2 Range - General Electric Range Wiring Diagram irfandi February 4, 2018 Uncategorized Leave a comment 121 Views Wiring diagram for ge electric range save oven general stove ge electric oven wiring diagram trusted diagrams rh hamze co stove harness ge electric range wiring trusted diagrams rh web vet co dishwasher jbp76gs2ww electric range body parts diagram. The wiring diagram is for a Robertshaw infinite heat surface element control switch. If your switch terminal numbering differs, consult the range's wiring diagram or the images above to try to ascertain the correct terminals to test between.. Power cords are of two types: three-pronged (the older variant) and four-pronged (the newer variant) power cords. To wire your electric stove and get it working, you will need to purchase a power cord that corresponds with your power outlet in terms of voltage (220.
May 09, 2009 · Discuss wiring diagram for oven control in Oven Repair (including Ranges and Cooktops). "I received the oven control part number wb27t10264 with no wiring instructions.. on or near the range. • Remove the oven doorfrom any unused range if it is to be stored or discarded. • Stepping, leaning orsitting on the doors or drawers of this range can result in serious injuries and cause damage to the range. The following situations could cause bodily injury or property damage.. Stove Wiring Diagram whitfield pellet stove parts diagram whitfield pellet stove parts diagram brnr 425 burner assembly dv425 with logs buy now · a 1 stoves wood gas and pellet stove parts rss new products feed $30 00 wiring diagram for a stove plug askmediy a simple to understand stove wiring diagram for a stove showing you how to wire for a 40 and and 50 and stove or over plug.
Nov 22, 2018 · Whirlpool Electric Range Parts Model Door Wirin ~ thanks for visiting our site, this is images about whirlpool electric range parts model door wirin posted by Benson Fannie in Whirlpool category on Nov 22, 2018. You can also find other images like images wiring diagram, images parts diagram, images replacement parts, images electrical diagram. Wiring a double oven furthermore maytag oven instructions kitchen appliances for sale in buy and sell stoves ranges and refrigerators kitchen classifieds page 4 maytag oven delay instructions maytag oven operating instructions along with kenmore gas range model 790 wiring diagram as well as frigidaire electric stove wiring diagram in addition. The wire supplying power from the breaker panel to your range outlet will usually be a 6/3 Romex cable (Blk wire- hot, Red wire - hot, White wire - neutral, Bare copper wire - ground). New stoves do not come with a power cord..
Disconnect the power supply from the range and then remove the screws securing the bake element to the rear of the oven cavity and pull the bake element outwards to expose the connections. If the connections look okay, re-install the bake element. Remove the panel from behind the control panel and inspect the wire connections on the oven control.. FRONT OF THE RANGE. Use the wiring diagram provided in this manual for determining the connections of the cook top wires to the oven terminal block. Electrical service connection is made through the bottom of the oven. A hole is provided for the attachment of. All Ranges And Wall Ovens When programming the oven into a cooking cycle, you first select the desired mode on the touch membrane. Pressing this key sends a message to the ERC/Clock control, which in turn triggers 24 Volts DC to be sent to the main relay board through the connective harness..
This IKEA Job Aid, “Wiring Diagrams For IKEA Appliances,” (Part No. 8178743), provides the Electric Range Wiring Diagrams BUILT-IN OVEN WIRING DIAGRAM TEMPERATURE PROBE BU 2 1 BU BAKE 1000W INTERNAL BROIL 900W CONVECTION ELEMENT 2000W BU BU BU BU. Find great deals on eBay for ge wiring diagram. Shop with confidence..
May 09, 2009 · Discuss wiring diagram for oven control in Oven Repair (including Ranges and Cooktops). "I received the oven control part number wb27t10264 with no wiring instructions.. on or near the range. • Remove the oven doorfrom any unused range if it is to be stored or discarded. • Stepping, leaning orsitting on the doors or drawers of this range can result in serious injuries and cause damage to the range. The following situations could cause bodily injury or property damage.. Stove Wiring Diagram whitfield pellet stove parts diagram whitfield pellet stove parts diagram brnr 425 burner assembly dv425 with logs buy now · a 1 stoves wood gas and pellet stove parts rss new products feed $30 00 wiring diagram for a stove plug askmediy a simple to understand stove wiring diagram for a stove showing you how to wire for a 40 and and 50 and stove or over plug.
Nov 22, 2018 · Whirlpool Electric Range Parts Model Door Wirin ~ thanks for visiting our site, this is images about whirlpool electric range parts model door wirin posted by Benson Fannie in Whirlpool category on Nov 22, 2018. You can also find other images like images wiring diagram, images parts diagram, images replacement parts, images electrical diagram. Wiring a double oven furthermore maytag oven instructions kitchen appliances for sale in buy and sell stoves ranges and refrigerators kitchen classifieds page 4 maytag oven delay instructions maytag oven operating instructions along with kenmore gas range model 790 wiring diagram as well as frigidaire electric stove wiring diagram in addition. The wire supplying power from the breaker panel to your range outlet will usually be a 6/3 Romex cable (Blk wire- hot, Red wire - hot, White wire - neutral, Bare copper wire - ground). New stoves do not come with a power cord..
Disconnect the power supply from the range and then remove the screws securing the bake element to the rear of the oven cavity and pull the bake element outwards to expose the connections. If the connections look okay, re-install the bake element. Remove the panel from behind the control panel and inspect the wire connections on the oven control.. FRONT OF THE RANGE. Use the wiring diagram provided in this manual for determining the connections of the cook top wires to the oven terminal block. Electrical service connection is made through the bottom of the oven. A hole is provided for the attachment of. All Ranges And Wall Ovens When programming the oven into a cooking cycle, you first select the desired mode on the touch membrane. Pressing this key sends a message to the ERC/Clock control, which in turn triggers 24 Volts DC to be sent to the main relay board through the connective harness..
This IKEA Job Aid, “Wiring Diagrams For IKEA Appliances,” (Part No. 8178743), provides the Electric Range Wiring Diagrams BUILT-IN OVEN WIRING DIAGRAM TEMPERATURE PROBE BU 2 1 BU BAKE 1000W INTERNAL BROIL 900W CONVECTION ELEMENT 2000W BU BU BU BU. Find great deals on eBay for ge wiring diagram. Shop with confidence..
Mitsubishi 4d34 Engine Workshop Manual
Electrolux PGLEF385CB1 Electric Range Timer - Stove Clocks and ... PGLEF385CB1 Electric Range Top/drawer Parts diagram
Electrolux PGLEF385CB1 Electric Range Timer - Stove Clocks and ... PGLEF385CB1 Electric Range Top/drawer Parts diagram
Mini Usb Cable Wiring Diagram
Electrolux PGLEF385CB1 Electric Range Timer - Stove Clocks and ... PGLEF385CB1 Electric Range Door Parts diagram. Wiring diagram Parts diagram
Electrolux PGLEF385CB1 Electric Range Timer - Stove Clocks and ... PGLEF385CB1 Electric Range Door Parts diagram. Wiring diagram Parts diagram
Minn Kota 12v Wiring Schematic
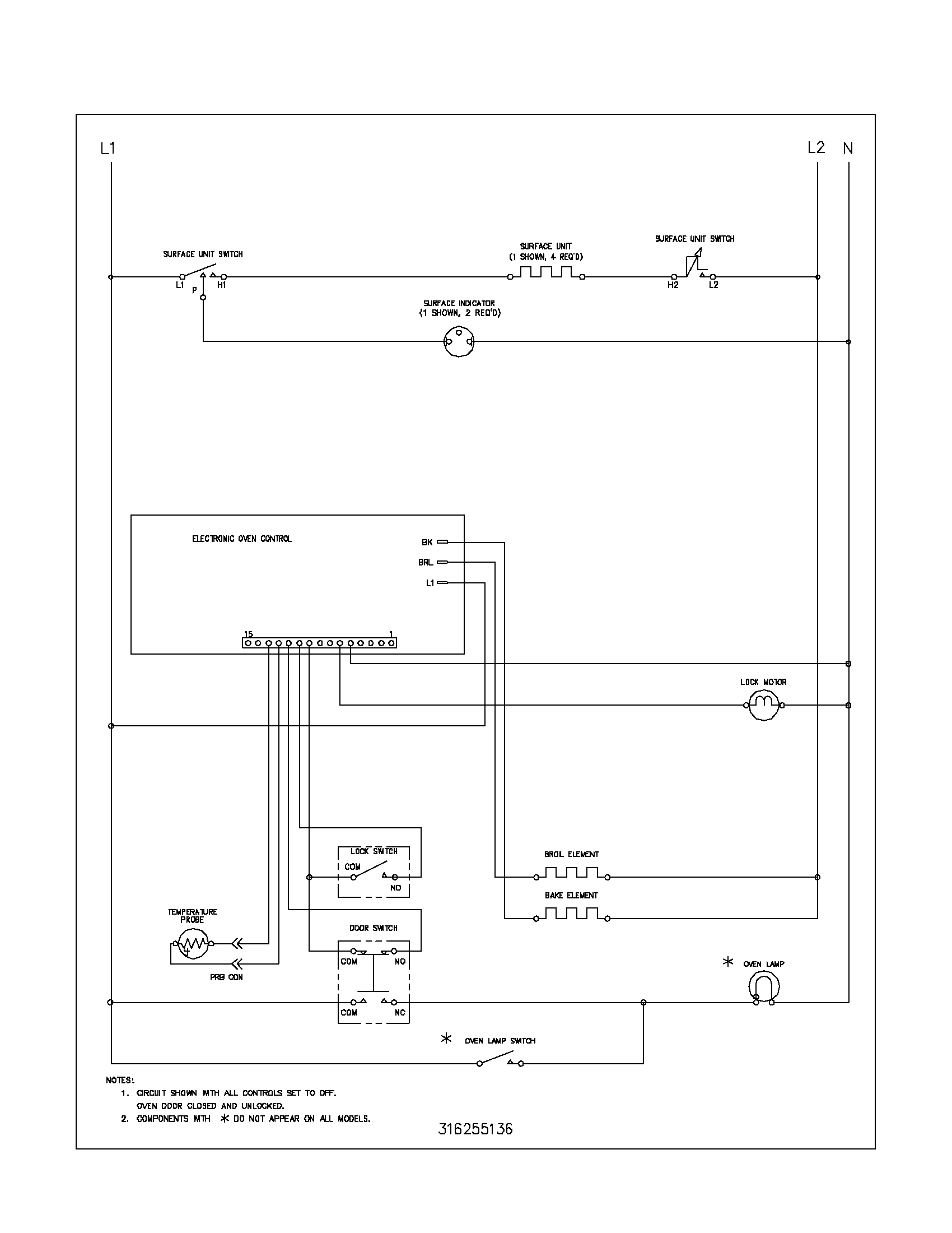
Frigidaire PGLEF385CS2 Electric Range Timer - Stove Clocks and ... PGLEF385CS2 Electric Range Wiring diagram Parts diagram
Frigidaire PGLEF385CS2 Electric Range Timer - Stove Clocks and ... PGLEF385CS2 Electric Range Wiring diagram Parts diagram
Mitsubishi City Multi Wiring Diagram
Wiring For Frigidaire Electric Range Oven - Trusted wiring diagrams frigidaire electric range parts model fef355aqd sears partsdirect frigidaire stove frigidaire electric range wiring schematic parts
Wiring For Frigidaire Electric Range Oven - Trusted wiring diagrams frigidaire electric range parts model fef355aqd sears partsdirect frigidaire stove frigidaire electric range wiring schematic parts
Securely Verified