Wiring Diagram For Fire Alarm Pulls - The following common wiring diagrams are available: One Single Door with Panic Bar. Electric Latch Retraction, with Auto Operator Fail Safe electrified breakaway lever with Push Button and fire alarm release - Fire Rated Application; Fire/Life safety wiring diagram .. Oct 30, 2018 · Knowing the proper method of fire alarm wiring is an important factor in fire safety and the protecting life and property from fire. Unlike the complex fiber-optic and coaxial cables and wires used to connect computer networks, most of the basic fire alarm wiring technology used today has remained relatively unchanged through the years.. Remove all pull ropes. 10. Unless the door operator includes an internal lock sensing system, or external electrical Read and understand the wiring diagram of the operator and the control station and any other equipment to be connected to the operator. relays receive the alarm signal from the fire alarm control panel. When the device.
Fire alarm bells are one of the most critical components of any fire protection system. They alert occupants to a fire by sounding a loud alarm when the very first fire sprinkler activates.. 2.22 Addressable Manual Pull Stations 27 2.23 Addressable Modules 28 Princeton, NJ Master Fire Alarm Technical Specifications Fire Alarm & Emergency Communications Systems 16720 - 5 C. system wire and cable shall be removed and disposed of properly off-site by the electrical con-tractor.. Where wire connectors are used in the fire pump circuit, the connectors shall be listed. A fire pump controller or fire pump power transfer switch, where provided, shall not be used as a junction box to supply other equipment, including a pressure maintenance (jockey) pump(s). A fire pump controller and fire.
Feb 12, 2018 · The Best Place To Find Perfect Clock. fire alarm pull station – Fire Alarm Pull Station Wiring Diagram Sample Fire Alarm Ravel Fire Alarm SIGA 278 Dual Action Pull Station Amazon Industrial & Scientific Single Action Fire Alarm Stations Fire Alarm Pull Station Wiring Diagram Sample SIGA 278 Dual Action Pull Station Amazon Industrial & Scientific fire – TruXter Tech Fire alarm. Provide a manual pull station attached to the fire alarm control panel that activates the general alarm. Resetting the manual pull station (and all other activated alarms) will cause the general alarm to cease operating. Interior wiring diagram for FACP. ADDRESSABLE FIRE ALARM SYSTEM Revision 0, May 29, 2009 283111 - 1. Title: SECTION. Four-wire type systems are also often used with devices such as beam detectors where an auxiliary 7 C NO NC C NO NC End of Line Monitoring Relay FIRE ALARM CONTROL PANEL Detection Line (Open Circuit for Alarm and Fault) Power Supply (Nominal 12V Fire Detection Systems Guide.
B200S Intelligent Sounder Base INSTALLATION AND MAINTENANCE INSTRUCTIONS 3825 Ohio Avenue, St. Charles, Illinois 60174 wire under the clamping plate (See Figure 2) The wiring diagram for a typical 2-wire intelligent system is shown in Figure 4. MOUNTING to the fire alarm control panel and the sounder base can be commanded to. The Channel Safety Systems Disabled Toilet alarm contractor Packs are an efficient way of purchasing a versatile and cost effective alarm system for. Extended Performance Release Device OWNER’S MANUAL Models: Fire Sentinel FSXPBB, Fire Sentinel FSXPBBVB Overhead Door Corp. Pennsylvania Division.
FIRE ALARM PULL DOWN TrueAlarm sensor 4098-9793 Isolator Base The one-line diagram on this page shows a multiple floor (see wiring notes) Compatible Simplex Fire Alarm Control Panel (model 4010ES shown for reference) Compatible IDNet device 4098-9793 IDNet Isolator. A fire alarm system is used primarily to evacuate the prem- wiring, or unauthorized removal of a detector or station, or if the winding of either relay opened, the trouble relay contacts would The ABC’s of Fire Alarm Systems - Section I . . ..
Fire alarm bells are one of the most critical components of any fire protection system. They alert occupants to a fire by sounding a loud alarm when the very first fire sprinkler activates.. 2.22 Addressable Manual Pull Stations 27 2.23 Addressable Modules 28 Princeton, NJ Master Fire Alarm Technical Specifications Fire Alarm & Emergency Communications Systems 16720 - 5 C. system wire and cable shall be removed and disposed of properly off-site by the electrical con-tractor.. Where wire connectors are used in the fire pump circuit, the connectors shall be listed. A fire pump controller or fire pump power transfer switch, where provided, shall not be used as a junction box to supply other equipment, including a pressure maintenance (jockey) pump(s). A fire pump controller and fire.
Feb 12, 2018 · The Best Place To Find Perfect Clock. fire alarm pull station – Fire Alarm Pull Station Wiring Diagram Sample Fire Alarm Ravel Fire Alarm SIGA 278 Dual Action Pull Station Amazon Industrial & Scientific Single Action Fire Alarm Stations Fire Alarm Pull Station Wiring Diagram Sample SIGA 278 Dual Action Pull Station Amazon Industrial & Scientific fire – TruXter Tech Fire alarm. Provide a manual pull station attached to the fire alarm control panel that activates the general alarm. Resetting the manual pull station (and all other activated alarms) will cause the general alarm to cease operating. Interior wiring diagram for FACP. ADDRESSABLE FIRE ALARM SYSTEM Revision 0, May 29, 2009 283111 - 1. Title: SECTION. Four-wire type systems are also often used with devices such as beam detectors where an auxiliary 7 C NO NC C NO NC End of Line Monitoring Relay FIRE ALARM CONTROL PANEL Detection Line (Open Circuit for Alarm and Fault) Power Supply (Nominal 12V Fire Detection Systems Guide.
B200S Intelligent Sounder Base INSTALLATION AND MAINTENANCE INSTRUCTIONS 3825 Ohio Avenue, St. Charles, Illinois 60174 wire under the clamping plate (See Figure 2) The wiring diagram for a typical 2-wire intelligent system is shown in Figure 4. MOUNTING to the fire alarm control panel and the sounder base can be commanded to. The Channel Safety Systems Disabled Toilet alarm contractor Packs are an efficient way of purchasing a versatile and cost effective alarm system for. Extended Performance Release Device OWNER’S MANUAL Models: Fire Sentinel FSXPBB, Fire Sentinel FSXPBBVB Overhead Door Corp. Pennsylvania Division.
FIRE ALARM PULL DOWN TrueAlarm sensor 4098-9793 Isolator Base The one-line diagram on this page shows a multiple floor (see wiring notes) Compatible Simplex Fire Alarm Control Panel (model 4010ES shown for reference) Compatible IDNet device 4098-9793 IDNet Isolator. A fire alarm system is used primarily to evacuate the prem- wiring, or unauthorized removal of a detector or station, or if the winding of either relay opened, the trouble relay contacts would The ABC’s of Fire Alarm Systems - Section I . . ..
1996 F250 Fuse Box Part
Fire Alarm Pull Station Wiring Diagram | Sketch Wiring Diagram Fire Alarm Pull Station Wiring Diagram System Sensor Duct Detector Wiring Diagram Luxury Simplex Smoke Of
Fire Alarm Pull Station Wiring Diagram | Sketch Wiring Diagram Fire Alarm Pull Station Wiring Diagram System Sensor Duct Detector Wiring Diagram Luxury Simplex Smoke Of
1996 Dodge Ram 1500 5 9 Service Manual
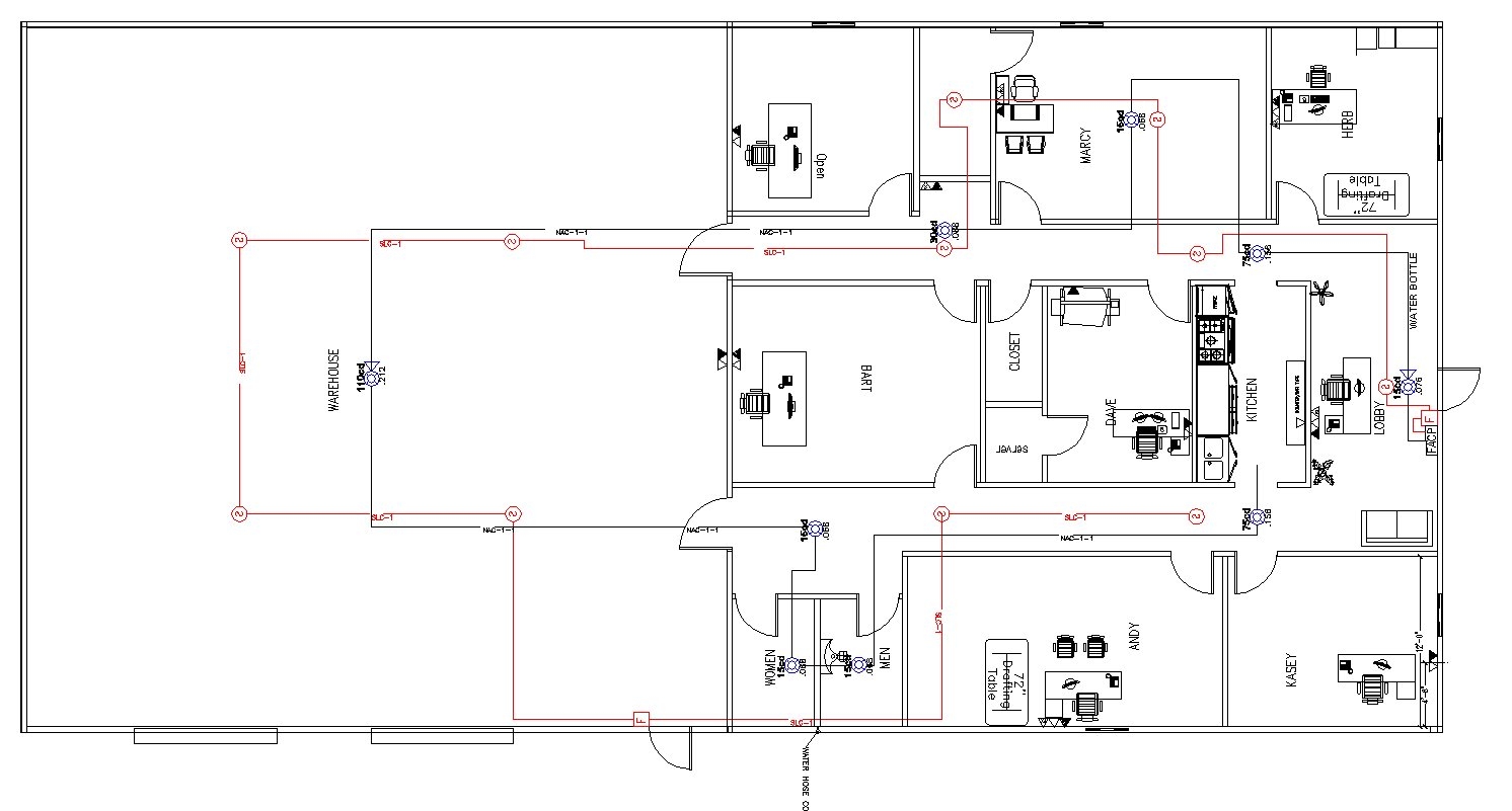
Free WIRING DIAGRAM FOR FIRE ALARM PULLS - Auto Electrical Wiring ... WIRING DIAGRAM FOR FIRE ALARM PULLS
Free WIRING DIAGRAM FOR FIRE ALARM PULLS - Auto Electrical Wiring ... WIRING DIAGRAM FOR FIRE ALARM PULLS
1996 Ford Ranger Wiring Harness Diagram
Free WIRING DIAGRAM FOR FIRE ALARM PULLS - Auto Electrical Wiring ... ... Fire Alarm Pull Station Wiring Diagram. Diagram.
Free WIRING DIAGRAM FOR FIRE ALARM PULLS - Auto Electrical Wiring ... ... Fire Alarm Pull Station Wiring Diagram. Diagram.
1996 Ezgo Golf Cart Wiring Diagram
Manual fire alarm activation - Wikipedia
Manual fire alarm activation - Wikipedia
Securely Verified